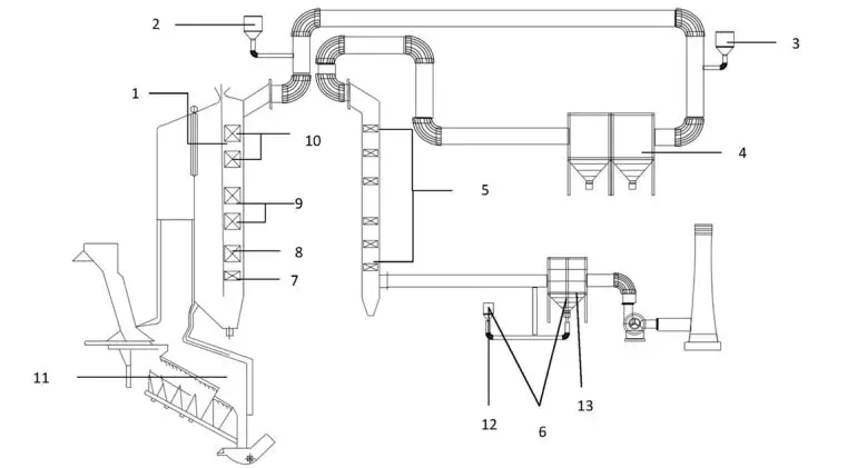
03 Jun 2024 By FilterMaster Waste Incineration Flue Gas Dust Removal Process: What Material of Filter Bag is Suitable? Every summer, Alten Construction hires a number of college interns to help further their knowledge of the construction industry and valuable... Continue Reading